住まう 〜世羅町のおすすめ物件をご紹介〜 [house]

[4-16]宇津戸 空き家

売家

物件詳細情報

物件
[4-16]宇津戸 空き家
所在地
世羅町大字宇津戸>Map(空き家バンク登録物件位置図)
構造
木造スレート葺2階建
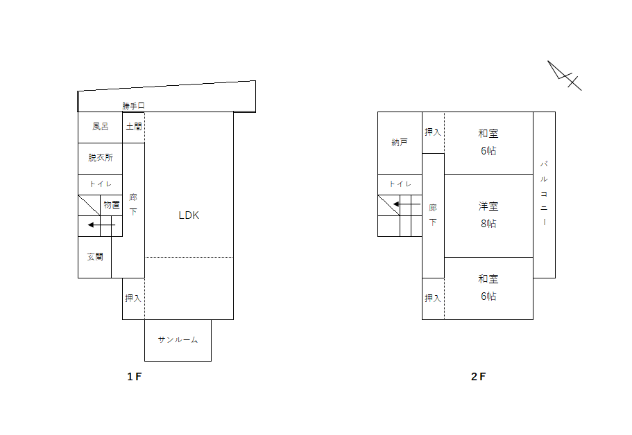
間取り
3LDK
宅地面積
217.20㎡
延床面積
105.86㎡
建築時期
昭和51年
空き家になった時期
令和8年
飲用水
トイレ
水洗(浄化槽)
付帯物件
なし
条件
売却700万円
その他
ボーリング掘削工事が必要
変更/登録
令和8年3月12日

<注意点>

 世羅町空き家・空き地バンク制度は、空き家・空き地を活用した住宅支援制度であり、世羅町に定住し地域の活性化に寄与できる人、又は地域住民と協調して生活できる人が利用登録した後、使うことのできる制度です。二地域居住を考えている人は利用できません。

  1. 個人から空き家・空き地を購入する場合、課税事業者ではない為、消費税はかかりません。
  2. 空き家のうち、「要修繕」の記載がある物件は何らかの修繕が必要となります。(大規模な修繕が必要な場合は、物件登録していません。)
    (例)屋根が傷んでいて雨漏りがするが修繕されていない。あるいは、一部の床が歩行時に注意を要し、修繕がいるなど、空き家・空き地バンクへの登録審査はクリアしたが、必ず修繕が必要な場合に「要修繕」と記載しています。このため、修繕後でないと入居は困難な場合があります。中古住宅のため、物件の中には「要修繕」の記載がない物件でも修繕が必要となる場合があります。
    世羅町空き家・空き地バンクに登録されている空き地は、個人が所有し、個人が居住を目的とした建築物を建築するために売買する物件です。
  3. 事業を始める予定のある方は事前にご相談ください。
  4. 農地(田、畑)の売買や賃貸借は世羅町農業委員会の許可が必要です。
  5. 建物内部の内見や契約交渉を希望される場合は、お申し出ください。
  6. 交渉希望者を募る期間は一定期間を確保し、物件所有者と調整を行い優先交渉者を決め、その後に個別交渉に入っていただきます。
  7. 契約交渉を希望しても個別交渉に入れない場合があります。
  8. 町は、物件登録者と利用登録者による交渉及び契約に直接関与しません(不動産業者を仲介としていただくことを原則とします。)。契約等のトラブルに関しては、当事者間で解決してください。

その他の物件